|
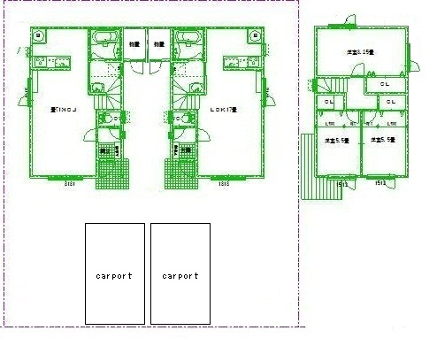
@@@@@@@@@@@@@@@@@@@@@@@@@@@@@@‚`“@@@@@@@@@@@@‚a“ @@@@@@@@@@‚QŠK•½–Ê}iŠe“‹¤’Êj
 @@@
@@@@@@@@@@@@@@@@@@@ˆêŠK•½–Ê}@@@@@@@@@@@@@@@@@@@@@@“ñŠK•½–Ê}
‰èŽº’¬
V’zŒËŒš
’À‘ÝZ‘î
’z”NŒŽ
•½¬‚Q‚R”N‚XŒŽ
Š®¬—\’è | Z@@Š | –kŠC“¹‰èŽº’¬“Œ‚P0ð‚W’š–Ú‚P”Ô‚RC‚V@iˆÄ“à}j |
| –Ê@@Ï |
E“y’nè—L–ÊÏ@@@@@–ñ139m2@i–ñ42’Øj
E‰„°–ÊÏ(Še“‹¤’Ê)@‰„80.72m2@i24.4’Øj
@“쑤“¹˜H‚W‚A’“ŽÔƒXƒy[ƒX‚Q‘ä•t‚« |
| \‘¢Ý”õ |
Eƒc[ƒoƒCƒtƒH[–Ø‘¢‚QŠKŒš‚Ä
EŠÔŽæ‚è‚R‚k‚c‚j@i‚k‚c‚j17’ŸA—mŽº8.25’ŸA—mŽº5.5’Ÿ~2j
EƒI[ƒ‹“d‰»Z‘î
EƒVƒXƒeƒ€ƒLƒbƒ`ƒ“i‚k=2100j
Eƒ†ƒjƒbƒgƒoƒXi‚P’؃^ƒCƒvj
E’~”M’g–[‹@Aƒpƒlƒ‹ƒq[ƒ^[AƒN[ƒ‰[
EƒJ[ƒ|[ƒg |
| ‰Æ@@’À |
Še“‹¤’Ê@‚V‚R,‚O‚O‚O‰~^ŒŽ
@@@@@@i•~‹à“ñƒ–ŒŽ•ªj |
“à•”ŽÊ^
@  @
 @
 @  @  @  |